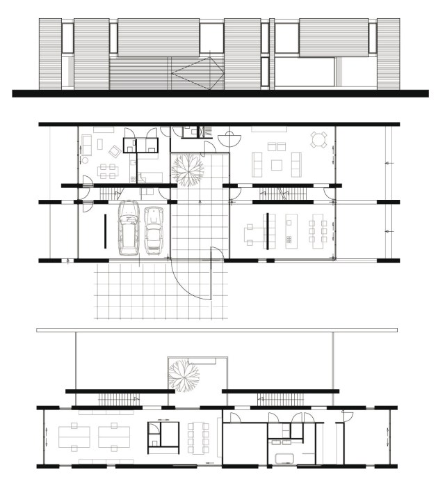
Door de relatief smalle kavel (20meter) is een bijzondere opzet ontstaan als uitgangspunt voor de woning. De plattegrond heeft een tamelijk eenvoudige opzet.

WOONHUIS, KANTOOR & AANLEUNWONING
De begane grond is opgezet in een u vorm, de verdieping in een rechte ‘balk’. In het hart van de U bevindt zich de entree van de private delen. De weg naar de entree wordt gevormd door (een nog aan te brengen) kunstwerk. Dit werk sluit in de avonduren en bij afwezigheid de ontstane patio af. Hierdoor ontstaat een intrigerend spel. Aan de patio grenst de garage welke is voorzien van een grote glaswand. De garage zal zo als showroom gaan werken en wordt daarmee onderdeel van de woning. Links van de entree bevindt zich de aanleunwoning van ca 48 m2. Rechts van de entree bevinden zich de woonkamer, keuken en studeerkamer van de woning, allen voorzien van maximaal glas om zo te kunnen genieten van het fraaie landschap.
In het volume zijn 2 trappen opgenomen welke recht tegenover elkaar gepositioneerd zijn in het hart van de begane grond. Eén trap in de woning en één trap tussen de garage en aanleunwoning, welke bedoeld is om het kantoor op de eerste verdieping aan de voorzijde rechtstreeks te ontsluiten. De trappen geven doorzichten over en weer op het gebouw en op het landschap. Het kantoor heeft door positionering op de eerste verdieping een interessant zicht over de wijk Witbrant.
